Описание конструкции сверхтяжелого танка «Маус»

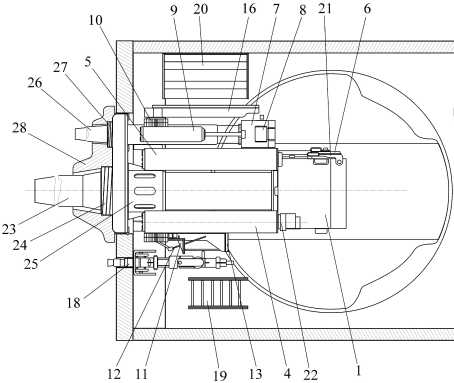
Сверхтяжелый танк «Маус» представлял собой боевую гусеничную машину с вращающейся башней. Корпус танка поперечными перегородками был разделен на четыре отделения: управления, моторное, боевое и трансмиссионное.

Отделение управления располагалось в носовой части корпуса. В нем размещались сиденья механика-водителя (слева) и радиста (справа), приводы управления, контрольные приборы, коммутационная аппаратура, радиостанция и баллоны огнетушителей. Перед сиденьем радиста, в днище корпуса, имелся люк запасного выхода. В нишах бортов носовой части корпуса располагались два топливных бака общей емкостью 1560 л. В крыше корпуса над сиденьями механика-водителя и радиста имелся посадочный люк, закрывавшийся броневой крышкой. Перед люком был установлен перископический прибор наблюдения с броневым ограждением.

Моторное отделение располагалось за отделением управления. В его центральном колодце размещался двигатель, а в нишах бортов — водяные и масляные радиаторы, вентиляторы системы охлаждения, выхлопные коллекторы (по два на борт) и масляный бак.

Боевое отделение располагалось за моторным в средней части корпуса танка. В боевом отделении размещались большая часть боекомплекта, агрегат для подзарядки аккумуляторных батарей и питания мотора поворота башни. В центральном колодце под полом боевого отделения были установлены одноступенчатый редуктор и блок главных и вспомогательных генераторов.

Над боевым отделением на роликовой опоре устанавливалась башня. В ней размещались сиденья командира танка, наводчика и заряжающих, спаренная установка пушек, пулемет, приборы наблюдения и прицеливания, механизмы поворота башни с электромеханическим и ручным приводом и оставшаяся часть боекомплекта. В крыше башни имелись два люка-лаза.

Трансмиссионное отделение располагалось в кормовой части корпуса танка. В нем размещались тяговые электромоторы и промежуточные редукторы.

Компоновка танка «Маус» (продольный разрез по корпусу).

КОРПУС танка сваривался из катаных броневых листов, обработанных на среднюю твердость.

Лобовые и кормовые броневые листы располагались под углами 35°-55° к вертикали. В отличие от других немецких тяжелых танков, в лобовых и кормовых листах «Мауса» не имелось люков, смотровых приборов и пулеметных установок, снижавших снарядостойкость.

Бортовые броневые листы располагались вертикально и выполнялись сплошными. Толщина бортового листа была не одинаковой: верхний пояс борта имел толщину 185 мм, а в нижней части бортовой лист на высоте 780 мм был выструган до толщины 105 мм. Нижняя часть борта предназначалась для крепления поддерживающих катков, а также использовалась для защиты ходовой части, играя роль фальшборта. Спереди гусеницы частично защищались броневыми козырьками толщиной 100 мм.

Крыша корпуса выполнялась съемной. Она состояла из отдельных броневых листов толщиной от 50 мм в подбашенной зоне до 105 мм над отделением управления. Для защиты башни от заклинивания при попаданиях снарядов к крыше корпуса приваривались две отражательные планки толщиной 60 мм.

Корпус и башня танка «Маус», захваченные союзниками в сборочном цеху завода фирмы Krupp в Эссене. 1945 год.

Днище корпуса в передней части имело толщину 105 мм, остальная часть днища — 55 мм. Надгусеничные листы и внутренние борта имели толщину соответственно 40 и 80 мм.

Даже поверхностный анализ распределения толщин броневых листов свидетельствует о стремлении конструкторов создать равнопрочный по снарядостойкости бронекорпус. Соотношение между толщиной брони лобовых и бортовых листов у немецких тяжелых танков составляло 0,5–0,6, а у «Мауса» оно достигало 0,925. Кроме того, усиление передних частей днища и крыши корпуса значительно влияло на равнопрочность корпуса в целом.

Английский офицер на фоне бронекорпуса танка «Маус». Хорошо видна конструкция корпуса, разделенного продольными переборками на центральные колодцы и ниши бортов.

Все соединения основных броневых деталей корпуса были выполнены в шип. Для увеличения конструктивной прочности шиповых соединений в их стыки были введены цилиндрические штифты. Штифт представлял собой двойной валик диаметром 50–80 мм, который вставлялся в отверстие, высверленное в стыках броневых листов. Отверстие высверливалось так, чтобы его ось располагалась в плоскости граней шипа соединяемых листов. Без штифта незаваренное шиповое соединение являлось разъемным. При применении в соединении двух перпендикулярно расположенных штифтов оно становится неразъемным еще до окончательной сварки. После сварки штифтовые соединения разгружают сварные швы. Штифты вставлялись заподлицо с поверхностью соединявшихся бронелистов и приваривались к ним по периметру основания. Кроме соединения верхнего лобового листа с нижним, штифтами соединены также борта корпуса с верхним лобовым и кормовым листами. Соединение кормовых листов между собой выполнено в косой шип без штифтов. Соединения остальных броневых деталей (части крыши, днище, надгусеничные листы и т. п.) выполнялись в четверть, встык или внахлест с применением двухсторонней сварки.

Схема бронирования танка «Маус».

БАШНЯ танка сваривалась из катаных листов и литых деталей из гомогенной брони средней твердости. Лобовая часть башни — литая, цилиндрической формы толщиной около 220 мм. Бортовые и кормовые листы — плоские, катаные, толщиной 210 мм. Бортовые листы расположены под углом 30° к вертикали, кормовой — 15°. Лист крыши башни имел толщину 65 мм. Соединение броневых деталей башни выполнялось в шип с применением штифтов, несколько отличавшихся от штифтов в шиповых соединениях корпуса.

Таким образом, башня также была сконструирована с учетом равнопрочности всех ее деталей.

Неподвижная часть башенного погона выполнялась за одно целое с зубчатым венцом. Погон помещался в ступенчатой расточке крыши корпуса танка. Кольцо, которое приваривалось заподлицо с расточкой, увеличивало вертикальную направляющую поверхность погона.

Подвижная часть погона была приварена к днищу башни и представляла собой цилиндрический лист. Башня устанавливалась на трех тележках с двумя роликами каждая. Тележки катились по горизонтальной беговой дорожке неподвижного погона. Горизонтальные усилия воспринимались шестью двухроликовыми тележками, катящимися по вертикальной беговой дорожке неподвижного погона.

Вращение башни осуществлялось при помощи электромеханического привода, а для аварийной ситуации был предусмотрен ручной привод.

Использовались две скорости вращения башни: быстрая — 8 град./с и медленная — 4 град./с. Во время марша башня блокировалась тремя стопорами. Кроме стопоров, неподвижность башни обеспечивало специальное пневматическое устройство.

Вид соединения верхнего кормового листа с нижним.

На вращающемся полике башни были установлены стеллажи для снарядов к обеим пушкам, здесь же размещался компрессор, предназначенный для продутая ствола 128-мм орудия. Компрессор работал от электрического двигателя постоянного тока мощностью 1000 Вт и напряжением 48 В.

На крыше башни располагались два посадочных люка, два вентилятора, неподвижный броневой колпак перископического прицела, перископический прибор наблюдения командира и амбразура «устройства ближнего боя». В кормовой стенке башни имелся люк для загрузки боеприпасов, в крышке которого имелась бойница для стрельбы из личного оружия.

Завершая описание конструкций корпуса и башни, несколько слов необходимо сказать о качестве брони. Все броневые детали имели различную твердость. Так, детали толщиной до 50 мм подвергались термообработке на высокую твердость, толщиной 160 мм обрабатывались на среднюю и пониженную твердость, а броневые листы внутренних бортов корпуса толщиной 80 мм — на низкую твердость. Броневые детали толщиной 185–210 мм также обрабатывались на низкую твердость.

Вид на отделение управления. Справа от сиденья механика-водителя установлено сиденье радиста.

Что касается химического состава, то катаную броню танка «Маус» можно разделить на четыре группы. Для листов толщиной 50 мм применялась хромоникелевая броня с повышенным содержанием марганца. Для 65-мм листов использовалась хромомарганцевая броня с 0,5 % содержания никеля, для 80-мм — хромоникелемолибденовая с повышенным содержанием марганца и хрома. И, наконец, для четвертой группы бронелистов с толщинами 200–210 мм применялась хромоникелемолибденовая броня, причем процент хрома и никеля в сравнении с листами меньшей толщины был увеличен до 0,8–2 %. Литая броня также имела два варианта состава. Для деталей небольшой толщины применялась хромоникелемолибденовая броня с повышенным содержанием марганца, а для деталей толщиной 220 мм — хромникелевая с содержанием никеля свыше 30 %.

Необходимо отметить, что во всех видах марках брони содержанием углерода было повышенным и находилось в пределах 0,3–0,45 %. Кроме того, для «Мауса» была характерна и общая в тот период для германского танкостроения тенденция замены легирующих элементов молибдена и никеля другими элементами — хромом, марганцем и кремнием.

ВООРУЖЕНИЕ. На танке устанавливались 128-мм и 75-мм спаренные танковые пушки и 7,92- мм пулемет MG42 (еще один пулемет укладывался в танке).

В башне спаренная установка пушек была смонтирована в специальной раме. Бронировка качающейся части пушек выполнялась литой и крепилась к общей люльке болтами.

128-мм пушка, разработанная фирмой Krupp, имела длину ствола 55 калибров (7020 мм). Начальная скорость бронебойного снаряда составляла 920 м/с. Затвор — клиновой, горизонтальный, имел 74 автоматики, то есть открывание затвора и экстрактирование гильзы производилось вручную, а после досылания снаряда и заряда затвор закрывался автоматически. Противооткатные устройства располагались над стволом орудия. Наибольшая дальность стрельбы осколочно- фугасным снарядом достигала 12,5 км.

Пушка KwK 44 отличалась от 128-мм зенитной пушки Flak 40 раздельно-гильзовым заряжанием. В тесной башне танка с длинным и тяжелым «унитаром» было не развернуться. Для ускорения процесса заряжания в состав экипажа «Мауса» входило два заряжающих: в то время как один досылал в камору снаряд, другой подавал гильзу с зарядом. Тем не менее скорострельность 128-мм пушки не превышала 2–3 выстр./мин.

Боекомплект пушки состоял из 61 (по другим данным — 68) выстрела, из которых 25 размещались в башне, а 36 (по другим данным — 43) — в корпусе танка.

75-мм пушка была идентична по конструкции 75-мм пушке KwK 37. Основное ее отличие состояло в увеличенной до 36,6 калибра длине ствола и нижнем размещении тормоза отката. Затвор — клиновой вертикальный, спуск — электромеханический. Боекомплект к пушке состоял из 200 выстрелов с бронебойными и осколочно-фугасными снарядами. 50 выстрелов размещалось в башне, 150 — корпусе танка.

7,92-мм пулемет MG42 был установлен в лобовой части башни, слева от 128-мм пушки, и имел независимые от пушек углы наведения. Боекомплект пулеметов состоял из 1000 патронов в четырех патронных коробках.

В качестве вспомогательного вооружения танк оснащался «устройством ближнего боя» (Nahkampfgerat) — мортир кой калибра 26 мм, в боекомплект которой входили дымовые, осколочные и осколочно-зажигательные снаряды. Мортирка располагалась в правой части крыши башни.

Танк «Маус» оснащался перископическим прицелом TWZF1, который устанавливался слева от 128-мм пушки. Головка прицела защищалась неподвижным бронированным колпаком. Соединение прицела с левой цапфой 128-мм пушки осуществлялось с помощью тяги параллелограмного механизма. Углы наведения по вертикали колебались в пределах от -7° до +23°. Наведение в горизонтальной плоскости осуществлялось поворотом башни.

Вид соединения кормового листа башни с левым бортовым листом. Стрелкой указан штифт.

По проекту определение дистанции до цели должно было производиться командиром танка с помощью горизонтально-базного стереоскопического дальномера с базой 1,2 м. Однако, судя по всему, такой дальномер установлен не был. Левое отверстие в крыше башни, предназначенное для выхода объективной головки дальномера, заварено, в правом был установлен перископический прибор наблюдения. Если учесть, что в Германии к 1945 году было разработано только два типа горизонтально-базных танковых дальномеров с базами 1,6 и 1,32 м, то вообще непонятно, какой дальномер должен был устанавливаться на «Маус».

Схема установки вооружения (вид сзади): 1 — казенник 128-мм пушки; 2 — клин затвора; 3 — люлька; 4 — тормоз отката; 5 — накатник; 6 — ограждение; 7 — казенник 75-мм пушки; 8 — клин затвора; 9 — накатник; 10 — правая цапфа люльки; 11 — кронштейн крепления перископического прицела; 12 — тяга прицела; 13 — кронштейн крепления подъемного механизма; 14 — тормоз отката 75-мм пушки; 15 — основание рамы; 16 — правый вертикальный кронштейн рамы; 17 — неподвижный броневой колпак; 18 — пулемет MG42; 19 — укладка пулеметных коробок; 20 — укладка 75-мм выстрелов.

Схема установки вооружения (вид сверху): 1 — казенник 128-мм пушки; 4 — тормоз отката; 5 — накатник; 6 — ограждение; 7 — казенник 75-мм пушки; 8 — клин затвора; 9 — накатник; 10 — правая цапфа люльки; 11 — кронштейн крепления перископического прицела; 12 — тяга прицела; 13 — кронштейн крепления подъемного механизма; 16 — правый вертикальный кронштейн рамы; 18 — пулемет MG42; 19 — укладка пулеметных коробок; 20 — укладка 75-мм выстрелов; 21 — рукоятка открывания затвора 128-мм пушки; 22 — крепление штока тормоза к казеннику; 23 — труба ствола 128-мм пушки; 24 — цилиндрическая пружина; 25 — люлька; 26 — труба ствола 75-мм пушки; 27 — цилиндрическая пружина; 28 — бронировка качающейся части.

Подытоживая рассказ о вооружении танка, будет не лишним привести выводы, сделанные специалистами НИБТПолигона в Кубинке после его изучения:

«Выводы по установке вооружения.

1. Установка двух танковых пушек в одной люльке имеет следующие преимущества перед обычными установками:

а) повышена огневая мощь танка;

б) возможно применение каждого вида оружия в отдельности, в зависимости от условий боя.

2. Заднее расположение башни уменьшает вылет ствола и способствует повышению маневренности танка в лесистой местности.

3. Конструкция 128-мм и 75-мм танковых пушек особого интереса не представляет и является аналогичной для всех немецких танковых пушек.

4. По своей мощности 128-мм пушка соответствует отечественной 122-мм пушке С-26-1, а 75- мм пушка уступает 76-мм пушке Т-34.

5. Скорострельность 128-мм пушки вследствие отсутствия автоматического открывания затвора ниже 122-мм пушки Д-25.

6. Соотношение веса танка «Maus» к весу установки вооружения равно 60, это же соотношение в танке ИС-3 равно 17, что говорит о несоответствии вооружения танка «Maus» его весу.

7. Наличие на танке стереодальномера с базой 1,2 м облегчает определение дальности до целей.

Применение дальномера является принципиально новым вопросом и требует специального исследования».

В качестве небольшого комментария к этим выводам можно отметить, что оценка дальномера в силу указанных выше причин носит чисто теоретический, хотя и безусловно правильный, характер. Что же касается скорострельности 128-мм пушки, то она ниже, чем у Д-25 при наличии одного заряжающего. В экипаже «Мауса», как, впрочем, и в экипаже «Ягдтигра» — еще одной машины, вооруженной 128-мм пушкой, заряжающих было два.

ДВИГАТЕЛЬ. На прототипах танка «Маус» устанавливались два типа силовых установок. Первый прототип оснащался 12- цилиндровым, четырехтактным Л-образным бензиновым двигателем жидкостного охлаждения МВ509 с непосредственным впрыском топлива и наддувом. Этот двигатель представлял собой танковый вариант авиационного двигателя DB 603А2. Мощность двигателя — 1750 л.с. при 2700 об/мин. Угол развала цилиндров — 60°. Рабочий объем — 44 540 см3. Ход поршня — 180 мм, диаметр цилиндра — 162 мм. Степень сжатия в цилиндрах левого блока — 7,5, правого — 7,3. Сухая масса двигателя — 1300 кг.

Топливо — этилированный бензин с октановым числом не менее 87. Емкость топливных баков — 1560 л. Основные топливные баки размещались в носовой части корпуса в нишах бортов. На кормовой части корпуса устанавливался дополнительный топливный бак емкостью 1500 л, подключавшийся к системе питания топливом. При необходимости он мог сбрасываться без выхода экипажа из машины.

Топливный насос — Bosch PZ 12НР 120/44, 12-плунжерный, с регулятором смеси и барометрическим корректором, устанавливался в развале цилиндров. Топливная форсунка относилась к типу закрытых. Ее размер не превышал размера свечи. Топливо впрыскивалось в цилиндры на такте всасывания под давлением 90 — 100 кГс/см2 через шесть отверстий, из которых два имели диаметр 0,6 мм и четыре — 0,3 мм.

Система смазки — принудительная с сухим картером и золотниковым распределением смазки. Циркуляция масла обеспечивалась работой 10 насосов: основного нагнетающего, трех насосов повышенного давления и шести откачивающих насосов различной производительности.

Система охлаждения двигателя — жидкостная, закрытого типа с принудительной циркуляцией, емкостью 110 л. В качестве охлаждающей жидкости использовалась смесь этиленгликоля с водой в равных пропорциях. Радиаторов — два, трубопластинчатых двухходовых. Кроме того, в систему охлаждения двигателя входили два пароотделителя, водяной насос, компенсационный бачок с паровым клапаном, трубопроводы и четыре вентилятора.

Бронировка качающейся части спаренной установки. Хорошо видны болты крепления бронировки к люльке.

Отдельно от системы охлаждения двигателя на танке «Маус» функционировала система охлаждения выхлопных коллекторов. Эта система также была жидкостной, закрытого типа с принудительной циркуляцией. Емкость системы составляла 40 л. Радиаторов — четыре, трубопластинчатых одноходовых. Они устанавливались рядом с радиаторами системы охлаждения.

Необходимо отметить, что применение жидкостного высокотемпературного охлаждения выхлопных коллекторов, изолированного от основной системы, увеличивало надежность работы двигателя и делало его эксплуатацию менее опасной в пожарном отношении. Как известно, применение воздушного охлаждения выхлопных коллекторов двигателей Maybach HL210 и HL230 не было эффективным. Перегрев выхлопных коллекторов этих двигателей являлся одной из причин возникновения пожара в танке.

По бортам танка попарно устанавливались четыре двухступенчатых вентилятора осевого типа. Они были снабжены направляющими аппаратами и приводились во вращение шестеренчатым приводом. Максимальная частота вращения вентиляторов составляла 4212 об/мин. Охлаждающий воздух засасывался и выбрасывался вентиляторами через бронированные решетки крыши моторного отделения.

Правая сторона моторного отделения. Хорошо видны двигатель МВ509 (на переднем плане), радиатор системы охлаждения двигателя, радиаторы выхлопных коллекторов, вентиляторы, правый топливный бак.

В систему зажигания входили 24-искровое магнето Bosch ZM CR8 и свечи Bosch DW 225ЕТ7 (по две на каждый цилиндр) с антипомеховой системой. Опережение зажигания — механическое, в зависимости от нагрузки двигателя. Механизм опережения имел приспособление, которое позволяло водителю производить периодическую очистку свечей при работающем двигателе.

Пуск двигателя осуществлялся вспомогательным электрогенератором, работавшим в режиме стартера. Стартер приводился в действие двухтактным двигателем Riedel ALM.

Изучая конструкцию двигателя МВ507, специалисты НИБТПолигона в Кубинке пришли к следующим выводам:

«1. Компоновка агрегатов силовой установки танка Maus выполнена по типу компоновки СУ «Фердинанд».

2. Двигатель DB 603А2 является авиационным двигателем, приспособленным для работы в танке.

3. Компактность системы охлаждения двигателя достигнута в результате применения высоконапорных двухступенчатых вентиляторов и жидкостного высокотемпературного охлаждения выхлопных коллекторов.

4. Заслуживает внимания система качественного регулирования смеси, учитывающая также барометрическое давление и температурные условия.

5. Для отечественного танкостроения представляет интерес конструкция следующих узлов и агрегатов:

а) двухступенчатых вентиляторов;

б) пароотделителя;

в) крыльчаток водяных насосов;

г) гидравлической муфты нагнетателя;

д) воздухоотделителя топливной системы;

е) приспособления для регулирования секций насоса на размерность подачи топлива».

Передняя сторона моторного отделения: в центральном колодце — двигатель, по обеим сторонам от него — топливные баки.

На втором прототипе «Мауса» был установлен 12-цилиндровый V-образный форкмерный дизель жидкостного охлаждения МВ517, представлявший собой модернизированный вариант опытного двигателя МВ507, разработанного в 1942 году для танка «Пантера». Путем наддува его мощность была увеличена с 720 до 1100–1200 л.с. К сожалению, ничего более конкретного об этом варианте силовой установки «Мауса» сказать нельзя, так как обнаруженный советскими войсками в мае 1945 года второй прототип был сильно разрушен взрывом. Удалось собрать только часть основных узлов двигателя: головку блока, рубашку блока с цилиндрами, картер и некоторые другие детали. Никакой технической документации по дизелю МВ517 обнаружено не было.

ТРАНСМИССИЯ. На танке «Маус» была установлена электромеханическая трансмиссия, состоявшая из двух параллельно работающих, независимых частей (каждая на одну из гусениц).

Электрическая часть трансмиссии состояла из узла главных генераторов в блоке с вспомогательным генератором и вентилятором, двух тяговых электродвигателей, генератора возбуждения, аппаратуры управления и аккумуляторной батареи.

Два главных генератора типа GV-306/30 фирмы Siemens-Schukert, питавшие током тяговые электродвигатели, размещались в специальном отсеке моторного отделения, позади двигателя внутреннего сгорания. Они были установлены на общем основании и, имея жестко сочлененные валы якорей, образовывали генераторный блок.

В блоке с главными генераторами находился вспомогательный генератор, якорь которого был смонтирован на одном валу с задним генератором.

Блок генераторов. Вид спереди справа.

Передний (по ходу танка) генератор обеспечивал питанием левый тяговый электродвигатель, задний — правый.

Наличие в составе электротрансмиссии вспомогательного генератора было обусловлено установкой в танке главных генераторов и тяговых электродвигателей с обмотками независимого возбуждения, питание которых током производилось от вспомогательного генератора.

Тяговые электродвигатели размещались в кормовом отсеке, по одному на гусеницу. Крутящий момент с вала каждого электродвигателя через двухступенчатый промежуточный редуктор передавался на ведущий вал бортовой передачи и далее — на ведущее колесо.

Блок подвески ходовой части.

Регулирование работы тяговых электродвигателей танка «Маус» производилось с помощью контроллеров двумя рукоятками управления.

Для начала движения вперед обе рукоятки перемещались от нейтрального положения вперед. При этом электродвигатели оказывались под напряжением и якори их начинали вращаться. Танк плавно трогался с места. Чтобы увеличить скорость движения, было необходимо увеличить напряжение главных генераторов, для чего рукоятки контроллеров передвигались дальше вперед. В этом положении тяговые электродвигатели развивали мощность, пропорциональную своим оборотам.

При наличии плохой дороги или при подъеме в гору, то есть с увеличением нагрузки на электродвигатели, была возможна их перегрузка. При недопустимой перегрузке срабатывало реле защиты с одновременной подачей светового сигнала механику-водителю.

Задний ход осуществлялся перемещением обеих рукояток контроллеров от нейтрали назад.

Поворот танка с большим радиусом производился при выключенном электродвигателе с той стороны, в которую совершался поворот. Для этого снималось напряжение с соответствующего генератора, для чего рукоятка контроллера переводилась в нейтральное положение.

Поворот с меньшим радиусом осуществлялся с помощью подтормаживания отстающей гусеницы электродвигателем. Для этого электродвигатель отстающей гусеницы переводился в генераторный режим.

«Маус» 205/2 в Бёблингене, лето 1944 года. Обращает на себя внимание стоящий за танком полугусеничный «Кюбельваген», по-видимому, предназначенный для поездок по полигону.

Для поворота танка вокруг своей оси электродвигателям задавалось противоположное вращение. В этом случае рукоятка одного контроллера переводилась вперед, а другого — назад от нейтрали. Чем дальше от нейтрали находились рукоятки, тем круче был поворот.

Трансмиссия танка «Маус» помимо электрической части имела на каждый борт два механических агрегата — промежуточный редуктор (гитару) с бортовым тормозом и бортовую передачу. В силовую цепь они были включены последовательно за электродвигателями. Кроме того, исходя из соображений компоновки, в отливке картера двигателя был смонтирован одноступенчатый редуктор. Он предназначался для совмещения осей двигателя и электрогенератора.

«Маус» 205/2 во время испытаний. Лето 1944 года.

ХОДОВАЯ ЧАСТЬ. Все элементы ходовой части размещались между основными бортовыми листами корпуса и фальшбортами. Фальшборт являлся не только броневой защитой ходовой части, но и опорой для крепления узлов и агрегатов гусеничного движителя и подвески.

Каждая гусеница танка состояла из 56 цельных и 56 составных траков, чередовавшихся между собой. Цельный трак представлял собой отливку с гладкой внутренней поверхностью, на которой имелся направляющий гребень. С каждой стороны трака были отлиты семь симметрично расположенных проушин. Составной трак состоял из трех литых частей, крайние из которых были взаимозаменяемы. Траки отливались из марганцовистой стали и подвергались термической обработке — закалке и отпуску.

Соединение траков осуществлялось пальцами, изготовленными из катаной углеродистой стали с последующей поверхностной закалкой токами высокой частоты.

Масса как цельного, так и составного трака с пальцем составляла 127,7 кг. Общая масса гусеницы — 14 302 кг.

Зацепление — цевочное. Ведущие колеса монтировались между двумя ступенями планетарных бортовых редукторов. Корпус ведущего колеса состоял из двух половин, соединенных между собой четырьмя болтами. Зубчатые венцы, по 17 зубьев в каждом, выполнялись съемными и крепились болтами к фланцам корпуса ведущего колеса.

Корпус направляющего колеса представлял собой фасонную отливку, выполненную за одно целое с двумя ободами. Механизм натяжения винтового типа без кривошипного механизма. Масса направляющего колеса в сборе с механизмом натяжения гусеницы составляла 1750 кг.

Корпус танка был подвешен на 12 блоках — по шесть на борт. В каждый блок входили две тележки, расположенные параллельно и повернутые относительно друг друга на 180°. Каждая пара тележек монтировалась на одном кронштейне коробчатого сечения, который крепился с одной стороны к фальшборту, а с другой — к бортовому листу корпуса. Двухрядное расположение тележек было обусловлено стремлением конструкторов увеличить число опорных катков и тем самым уменьшить нагрузку на каждый из них.

Тележка подвески имела два опорных катка, кинематически связанных между собой двумя балансирами. Верхний балансир представлял собой фасонную полую отливку и шарнирно крепился к кронштейну подвески с помощью пальца. К нижнему литому балансиру крепились оба опорных катка. Упругими элементами каждой тележки являлись коническая буферная пружина и резиновая подушка.

Все опорные катки имели одинаковую конструкцию. Внутренняя амортизация опорного катка обеспечивалась двумя резиновыми кольцами, зажатыми между литым ободом Т-образного сечения и двумя стальными дисками. Масса опорного катка составляла 110 кг.

Поперечный разрез по кормовому отсеку трансмиссионного отделения.

ОБОРУДОВАНИЕ ПОДВОДНОГО ВОЖДЕНИЯ. Танк «Маус» был оснащен оборудованием подводного вождения, обеспечивавшем ему преодоление по дну водных преград глубиной до 8 м с продолжительностью пребывания под водой до 45 мин. Судя по всему, немецкие специалисты трезво оценивали способность движения 180-тонного танка по мостам — такую нагрузку не выдержал бы ни один капитальный мост, не говоря уже о наплавных.

Для обеспечения надежной герметичности танка при движении под водой все отверстия и их крышки имели прокладки особой конструкции, способные выдержать давление воды до 1 кГс/см2. Герметичность стыка между маской спаренной установки пушек и башней осуществлялась путем затяжки семи болтов крепления бронировки и резиновой прокладкой, устанавливавшейся по периметру ее внутренней стороны. При отпускании болтов маска возвращалась в исходное положение с помощью двух цилиндрических пружин, надетых на стволы пушек между люлькой и маской.

Герметичность стыка корпуса и башни танка обеспечивалась конструкцией опоры башни. Перед преодолением водной преграды башня при помощи червячных приводов, поднимавших вертикальные тележки, опускалась на погон и за счет своей большой массы плотно прижимала установленную по периметру погона резиновую прокладку, чем и достигалась герметичность стыка.

Металлическая составная воздухопитающая труба устанавливалась на люк механика-водителя и дополнительно крепилась стальными растяжками. Выхлопные газы выбрасывались в воду через установленные на выхлопных трубах обратные клапаны.

ПРОТИВОПОЖАРНОЕ ОБОРУДОВАНИЕ. Силовая установка танка снабжалась автоматической противопожарной системой. Для тушения огня использовался сжатый углекислый газ, хранившийся под давлением 190 атм. в двух баллонах. Всего в баллонах находилось 3000 л газа.

Если температура в силовом отделении превышала 160°, то срабатывала автоматика. Сначала опорожнялся первый баллон, а затем и второй. В случае поломки автоматической системы открыть баллоны можно было вручную. От баллонов газ подавался по стальным трубам диаметром 10 мм к выпускным соплам диаметром 3 мм.

На приборных досках у места механика-водителя и радиста были установлены контрольные лампочки, сигнализировавшие о пожаре в моторном отделении.

* * *

Предлагаемое читателю описание конструкции танка «Маус» в основном составлено по материалам отчета НИБТПолигона ГБТУ ВС «Сверхтяжелый немецкий танк «Maus». В связи с этим будет не лишним привести здесь точку зрения советских специалистов об этой машине. Поскольку отчет касался только конструкции танка (никакие испытания не проводились по причине отсутствия ряда узлов и агрегатов), то и выводы затрагивают только этот аспект. Не лишним будет напомнить также, что стилистика и орфография документа оставлены без изменений.

«Немецкий танк Maus по своему весу и габаритам является первым в мировом танкостроении образцом сверхтяжелого танка и представляет интерес как по самой идее, так и по конструктивному выполнению основных узлов и агрегатов.

К характерным особенностям танка Maus относятся:

I. По компоновке и общему устройству.

1. Компоновка танка отличается от обычно принятой на современных образцах, главным образом расположением силовой установки.

Двигатель расположен за отделением управления в общем колодце с блоком генераторов. Такое размещение силовой установки стеснило доступ к основным агрегатам ее, усложнило монтажно-демонтажные работы и привело к смещению боевого отделения ближе к кормовой части танка.

Другие отделения танка расположены по общепринятой схеме для танков с задним расположением трансмиссии.

2. Объемы отделений управления, боевого и трансмиссионного обеспечивают удобство работы экипажа и необходимый доступ к агрегатам, расположенным внутри корпуса.

Оба опытных образца на хранении в Куммерсдорфе. 1945 год.

II. По конструкции корпуса и башни.

1. Корпус танка сварной и состоит из броневых листов толщиной от 40 до 200 мм.

Если сравнить толщину брони танка Maus с толщиной брони других современных танков весом 50–70 тонн, то станет очевидным несоответствие броневой защиты танка Maus его весу.

Для танка весом 180 тонн толщина брони явно недостаточная.

2. В распределении толщины брони по частям корпуса немцы на этом образце отошли от принятых ранее принципов.

Вместо имевшегося соотношения между толщиной лобовых и бортовых деталей 0,5–0,6 на танке Maus реализовано соотношение 0,925. Вообще в броневой защите танка Maus заметна тенденция создания равнопрочной конструкции во всех частях корпуса.

3. Конфигурация корпуса не предусматривает максимального использования преимуществ больших конструктивных углов.

Корпус имеет нижний лобовой лист под углом только 35° и бортовые вертикальные листы.

Если сравнить конфигурацию корпуса танка Maus с конфигурацией танка T-V, то первая является шагом назад.

4. Характерным является отсутствие на лобовых листах люков, лобового пулемета или щелей, имевшихся на других немецких танках и ослабивших их.

5. Соединения броневых листов шиповые. Шипы прямоугольные.

Первый прототип «Мауса» (205/1), обнаруженный частями Красной Армии на Куммерсдорфском полигоне. Идет подготовка к эвакуации танка. Судя по положению тросов, советские специалисты готовятся свалить балластную башню на землю.

Для усиления шиповых соединений применены цилиндрические шпонки (имеются в виду штифты. — Прим. автора), вставленные в стыки.

6. Броня корпуса и башни гомогенная средней твердости (НВ=3,4…4,2) с повышенным содержанием углерода (0,30-0,45), высоколегированная.

7. Опора башни оригинальной конструкции. Вместо обычной шариковой опоры применены две системы тележек: 3 вертикальных тележки обеспечивают опору башни на горизонтальную беговую дорожку и 6 горизонтальных тележек служат для центровки башни в горизонтальной плоскости.

Характерным является приспособление для опускания башни при подводном хождении танка. Для этой цели вертикальные тележки при помощи червячного привода могут быть подняты, и башня опустится на погон.

Взорванный немцами второй прототип «Мауса» (205/2), обнаруженный в Штаммлагере. По снимку видно, что разрушению в основном подвергся корпус танка.

III. По вооружению.

1. Наличие спаренной установки 128-мм и 75-мм пушек хотя и увеличило огневую мощь по сравнению с другими танками, но для танка весом 180 тонн огневая мощь недостаточна.

2. Целесообразность установки двух пушек в одной башне, обслуживаемых одними и теми же членами экипажа, резко отличающихся баллистическими качествами, является спорной.

2. Применение дальномера облегчает определение дистанций и заслуживает внимания.

IV. По силовой установке.

1. На танке установлен авиационный двигатель DB-603A2, приспособленный для работы в танке.

2. Заслуживает внимания конструкция системы охлаждения. Применение высоконапорных двухступенчатых вентиляторов обеспечивало компактность системы охлаждения.

3. Характерным является применение жидкостного высокотемпературного охлаждения выхлопных коллекторов.

4. Представляет интерес система качественной регулировки смеси, учитывающей также барометрическое давление и температурные условия.

5. Для конструкторов отечественного танкостроения представляет интерес конструкция следующих агрегатов и деталей:

а) двухступенчатого вентилятора;

б) пароотделителя;

в) крыльчаток водяных насосов;

г) гидромуфты привода нагнетателя;

д) воздухоотделителя системы подачи топлива;

е) приспособления для регулирования секций насоса на равномерность подачи топлива.

Корпуса и башни сверхтяжелых танков «Маус», обнаруженные американцами в цехах завода фирмы Krupp в Эссене. Май 1945 года.

V. По трансмиссии.

Электромеханическая трансмиссия танка Maus отличается как по схеме, так и по конструктивному выполнению отдельных узлов и агрегатов от известных нам трансмиссий СУ «Фердинанд», Т-23 и отечественного танка ЭКВ.

К особенностям электрической части трансмиссии танка Maus относятся:

1. Независимость систем, передающих мощность на каждую из гусениц.

2. Способность тяговых генераторов сохранять почти постоянную величину мощности и оборотов при различных нагрузках на тяговые электродвигатели.

3. Наличие вспомогательного генератора, используемого также в качестве стартера и для подзарядки аккумуляторов, помимо основной задачи — питания обмоток независимого возбуждения генераторов и электродвигателей.

4. Хорошо продуманная система воздушного охлаждения электромашин трансмиссии.

5. Наличие генератора-возбудителя, обеспечившее независимость возбуждения главных генераторов и электродвигателей от скорости вращения коленчатого вала двигателя.

6. Применение потенциометрической схемы включения контроллера, обусловившее большую плавность изменения тока возбуждения, а следовательно, магнитного потока и напряжения генератора.

7. Приспособленность системы к питанию электродвигателей одного танка от генератора другого.

8. Наличие аппаратуры автоматической защиты электродвигателей от перегрузок.

9. Применение системы управления, выполненной по схеме Леонард, дающей следующие преимущества:

а) широкое и плавное регулирование скорости вращения электродвигателей, а следовательно, и скорости движения танка при небольших потерях;

б) отсутствие потерь в реостатах при пуске в ход и реверсировании электродвигателей;

и) легкое управление запуском, торможением и реверсированием.

10. Незащищенность мотор-генераторного агрегата от перегрузок со стороны электродвигателя.

11. Сравнительная простота коммутационной аппаратуры и аппаратуры управления тяговыми электродвигателями, полученная за счет применения реверсирования путем переключения концов обмотки независимого возбуждения генератора, а не переключением в главных цепях, как это осуществлено в других системах.

Особенности механической части трансмиссии.

1. Компактность агрегатов, особенно бортовой передачи (при передаточном отношении 25,446).

2. Широкое использование самоустановки шестерен путем применения сферических роликоподшипников.

3. Применение циркуляционной смазки с «сухим картером» и фильтрацией масла в гитаре.

4. Резко выраженная коррекция зубьев шестерен в целях повышения их износоустойчивости и выравнивания износоустойчивости шестерен сопряженной пары.

5. Обшивка неподвижных, нажимных дисков тормозов специальной металлизированной спекающейся массой.

6. Интенсификация охлаждения дисковых тормозов за счет введения радиальных каналов во вращающемся диске тормоза, благодаря чему увеличена поверхность охлаждения и обеспечена циркуляция воздуха.

7. Применение резервных (по длине) сателлитов в бортовой передаче, обеспечившее более равномерное распределение усилий по длине зуба.

8. Жесткая конструкция водил.

Сборочный цех завода Krupp в Эссене. Хорошо видны корпус и башня «Мауса», а также две литые маски спаренной установки 128-мм и 75-мм пушек. Май 1945 года.

VI. По ходовой части.

1. Применение в качестве упругого элемента подвески буферных пружин прямоугольного сечения заимствовано из американских танков и продиктовано стремлением увеличить число тележек, чтобы разгрузить катки.

Очевидно, такое решение вопроса подрессоривания было вынужденным, т. к. все другие танки того периода имели торсионную подвеску, и такого типа подвеска не могла дать никаких преимуществ.

2. Использование резиновых подушек в качестве дополнительного упругого элемента, вступающего в работу при больших амплитудах колебания корпуса и ограничителя хода балансиров, снизило надежность работы подвески. Как показал осмотр ходовой части танка, большинство резиновых подушек либо разрушено, либо утеряно.

3. Заслуживает внимания применение опорных катков с внутренней амортизацией, обеспечивающей надежную их работу при больших нагрузках на опорные катки. Состояние катка при разборе было хорошим.

ЗАКЛЮЧЕНИЕ.

1. Немецкий танк Maus является первым реально существующим и проверенным на ходу образцом сверхтяжелого танка.

2. Сам факт создания танка весом 180 тонн, обладающего максимальной скоростью 25 км/ч и удельным давлением на грунт 1,2 кг/см2, представляет интерес.

3. Броневая защита танка (максимальная толщина брони 210 мм) и огневая мощь (128-мм и 75-мм пушки) не соответствуют его весу. Современные танки и СУ весом 60–70 т имеют броневую защиту и вооружение, не уступающие таковым у танка Maus.

4. Чрезмерно большой вес танка Maus объясняется стремлением создать равнопрочную во всех частях корпуса и башни броневую защиту, установкой тяжелых 100-мм экранов для защиты ходовой части и неудачной компоновкой, приведшей к чрезмерным габаритам.

5. Заслуживает внимания отечественного танкостроения конструкция следующих узлов и агрегатов:

а) электротрансмиссии;

б) механической части трансмиссии;

в) гусеничного движителя;

г) систем охлаждения и питания двигателя».

Тактико-технические характеристики танка Maus.

Красноармейцы осматривают взорванный танк «Маус» 205/2. Июнь 1945 года. На переднем плане — кусок гигантской гусеницы этого танка.

Более 800 000 книг и аудиокниг! 📚

Получи 2 месяца Литрес Подписки в подарок и наслаждайся неограниченным чтением

ПОЛУЧИТЬ ПОДАРОК